Дом-резиденция «Собрание» — это коллекция уникальных лотов с переосмыслением классической архитектуры, высоким качеством строительства и сервисом в формате пятизвездочного отеля.
В доме представлено 169 лотов: от однокомнатных квартир до резиденций с личными террасами. В большинстве из них будут обустроены гардеробная, раздельный санузел и постирочная, а также запроектирована техническая возможность объединения жилых помещений.
В распоряжении собственников дома-резиденции «Собрание» будут просторные лобби, библиотека, рабочее пространство, бьюти-коворкинг, детский клуб и собственный парк. В ресторане с приватной зоной резиденты смогут получить гастрономические впечатления, не выходя из дома. Высокий уровень качества жизни резидентов обеспечат экологичные материалы, передовое технологическое оснащение и система «Умный дом».
В «Собрании» предусмотрена работа круглосуточной рецепции и room-service с широким спектром услуг: от клининга квартир до заказа блюд из ресторана. Вопрос безопасности и размещения автомобилей решает подземный паркинг на 163 парковочных места с круглосуточным видеонаблюдением и станциями зарядки для электромобилей.

Поделиться
Однокомнатные квартиры
Площадь: от 48,74 до 80,45 кв.м
Квартиры спроектированы с учетом выбора различных жизненных сценариев и правил современного зонирования. Здесь предусмотрена просторная кухня с возможностью организации гостиной, уютная спальня и гардеробная.

Поделиться
Двухкомнатные квартиры
Площадь: от 66,53 до 111,77 кв.м
Идеальная планировка для резидентов, которые ценят приватность и эстетику. Функциональная персональная мастер-спальня с личной ванной, просторной гардеробной. Продуманная эргономика и удобное зонирование.

Поделиться
Трехкомнатные квартиры
Площадь: от 87,47 до 141,2 кв.м
Такие планировочные решения являются балансом между простором и камерностью, объединяя большие гостиные для встреч с близкими и приватные мастер-спальни с личными гардеробными и ванными комнатами для каждого члена семьи.

Поделиться
Двухуровневые квартиры
Площадь: от 94,77 кв.м. до 141,2 кв.м.
Это уникальное пространство, которому нет аналогов среди элитной недвижимости в Ростове-на-Дону. Мы сделали планировку двухуровневых квартир безупречной по форме и содержанию. Первый уровень является территорией притяжения всех домочадцев и гостей: здесь расположена просторная кухня-гостиная, а на втором изолированные спальни.

Поделиться
Квартиры с террасами
Площадь: от 51,93 до 141,2 кв.м
В доме-резиденции предусмотрены квартиры с собственными просторными террасами, объединяющими комфорт городской жизни и возможность отдыха на свежем воздухе. Это новый взгляд на организацию пространства современных элитных квартир и альтернатива загородному дому.

Поделиться
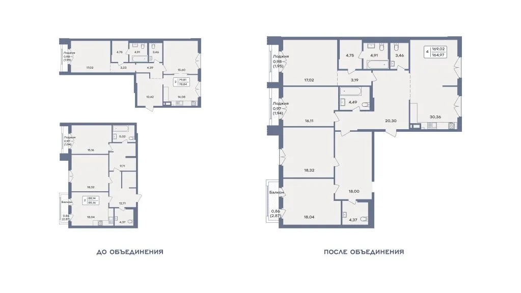
Персональное объединение квартир
Площадь: от 164,97 кв.м
Создать уникальную и комфортную планировку, которая будет отвечать лично вашим потребностям можно с помощью объединения квартир на этапе строительства. Обустроить большую кухню-столовую с зоной релаксации, либо создать просторную зону отдыха на смежных балконах, объединив их в единое целое - здесь все ваши мечты и свобода творчества воплотятся в реальность с помощью различных решений, которое индивидуально помогут подобрать наши архитекторы.
Возможны различные варианты объединения под ваш индивидуальный запрос.
Получить подробную информацию о планировках дома-резиденции «Собрание» можно в офисе отдела продаж по номеру телефона: 8-863-204-61-89.
Проектная декларация
http://наш.дом.рф/сервисы/каталог-новостроек/объект/52290
Реклама, ООО «СЗ «Альянс Групп»,
erid:LdtCKYYmh